PARGOT是一个位于墨西哥城Roma Norte社区的项目,一个10平方米的餐厅,融合了海洋美食和社区的传统建筑。
室内设计将我们带回到20世纪20年代的装饰艺术运动,重新诠释并赋予新的意义,在颜色和几何之间产生了基于对称和平衡的构图。不同组成平面的插入产生了深度的一个方面。当观众接近这个地方时,元素分解,给小空间以速记式的深度。
前面是由两只鹦鹉和高吧台组成的公共区域,可以容纳四名用餐者。地板、低栏杆和吧台由白色混凝土微水磨石与蓝色、黄色和灰色石头的混合物组成,这与我们在沙滩上发现的海滩和贝壳相呼应。墙壁的材料发生了戏剧性的变化,一个金色的黄铜圆包隐藏了一个光源,用竹子沐浴在有质感的墙壁上,投射出植物的纹理和从下面投下的阴影。
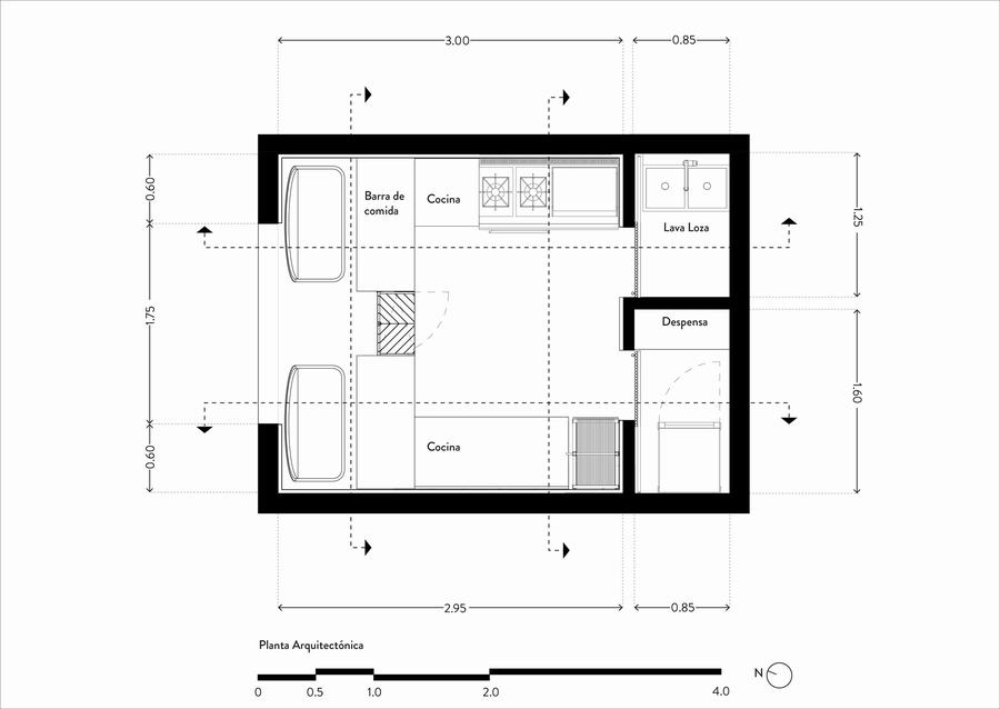
在吧台后面,有一个小的工业厨房,由两个拱门和两个滑动黄铜门组成的墙划分出冷热区,当打开时,气氛发生了变化,从金色过渡到深蓝色,激发一种感觉,让我们更接近大海。
设计一个小于107平方英尺的餐厅是一个挑战,我们在这个项目上试图解决的问题是创建一个几何组件的组合,以带来空间的深度。
















