在我们所生活的现代社会中,“多用途”盛行。人们有“多重角色”这样的概念,空间更是如此。房子变成了咖啡馆,书店变成了酒吧,百货商店变成了画廊。bili首尔可以被看作是一个俱乐部或休闲酒吧,但它有不为人知的一面。
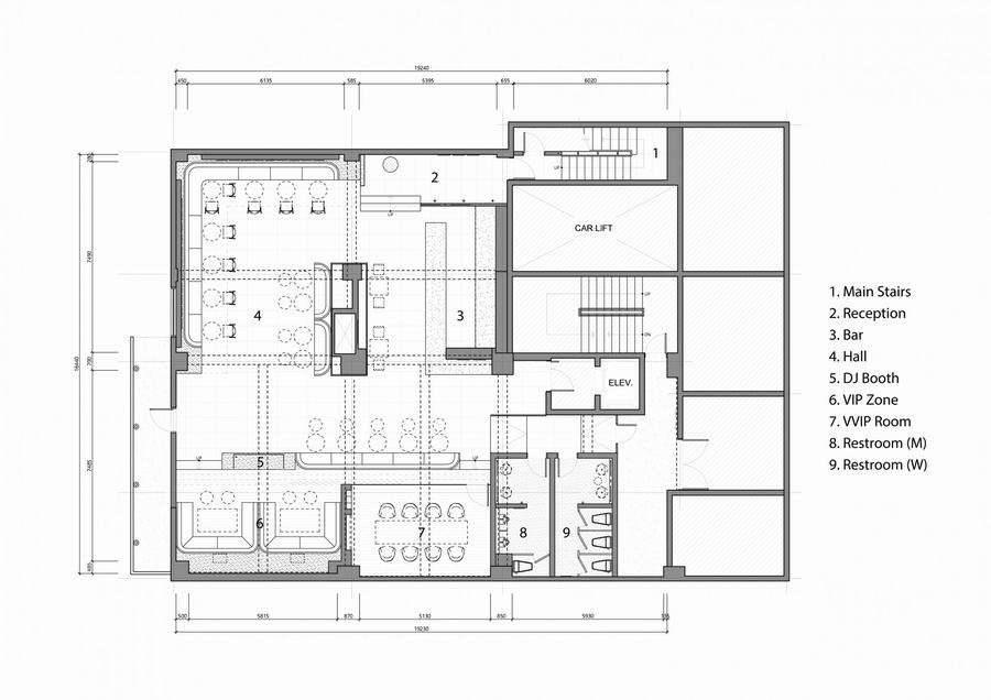
作为NFT业务的初创企业,客户需要一个线下空间,用于展示和销售NFT产品等活动。此外,业主希望它不仅能作为NFT展厅,还能作为会议空间和餐饮空间,供饮用、聆听和观看;结合在一起。Billi首尔是一个复杂的空间,作为一个实验场所,拥抱平台的多样性。
吸引周围墙壁视线的相框不仅仅是装饰品;它们都是非艺术作品。特定艺术家的作品被分门别类地摆放,比利的游客可以立即购买自己喜欢的作品。在这个空间里,可以举办一个启动派对,并在饮料和音乐的基础上与他人进行社交活动。
考虑到这种形态变化和整理重叠的和谐,设计团队认为NFT作品脱颖而出。他们把适合数字化的“赛博朋克”作为整个概念。通过打破典型的明亮色调的画廊,他们计划了一个可以融入更多休闲氛围的空间,保持黑暗。框架通常发出蓝色的光,所以红色的光引入空间作为对比。蓝色和红色之间模糊的光的边界唤起了一种神秘的气氛。

















