在全球范围内,美容行业正在经历一场革命性的变革。这场变革不仅体现在产品创新上,更体现在店面设计和顾客体验上。Oliveyoung,作为K-Beauty的代表性品牌,敏锐地捕捉到了这一趋势,并积极寻求创新和突破。为了迎接大流行后的新时代,Oliveyoung决定为其全球受众量身定制一套全新的商店设计手册和程序,以巩固其作为标志性商店的地位,并引领美容行业线下场景的新变化。
在新的设计理念中,Oliveyoung注重了顾客的多元化国籍和明洞商业区的变化。他们意识到,随着全球化的推进,不同国家的顾客对于购物体验有着各自独特的需求和期望。因此,他们决定打破传统的店面设计模式,采用更加灵活和包容的设计理念。
延伸阅读:彩妆品牌黑洞Haydon,以超现实艺术手法彰显品牌特性。
新的店面设计以立面整合了媒体,将重新设计的标志和重新定义的图形主题风格巧妙地结合在一起。这种设计旨在克服过去入口的封闭感,为顾客呈现一个透明而直接的内部视图。透过玻璃幕墙,顾客可以清晰地看到店内的产品陈列和顾客活动,从而产生更强烈的购物欲望。
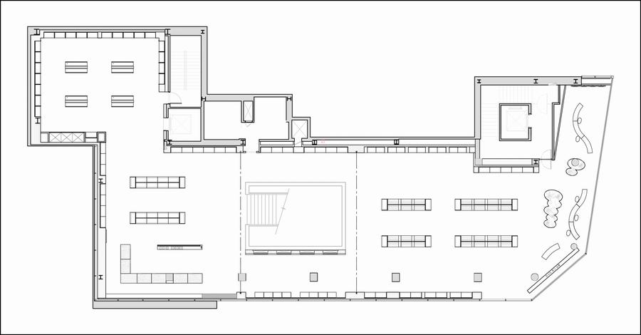
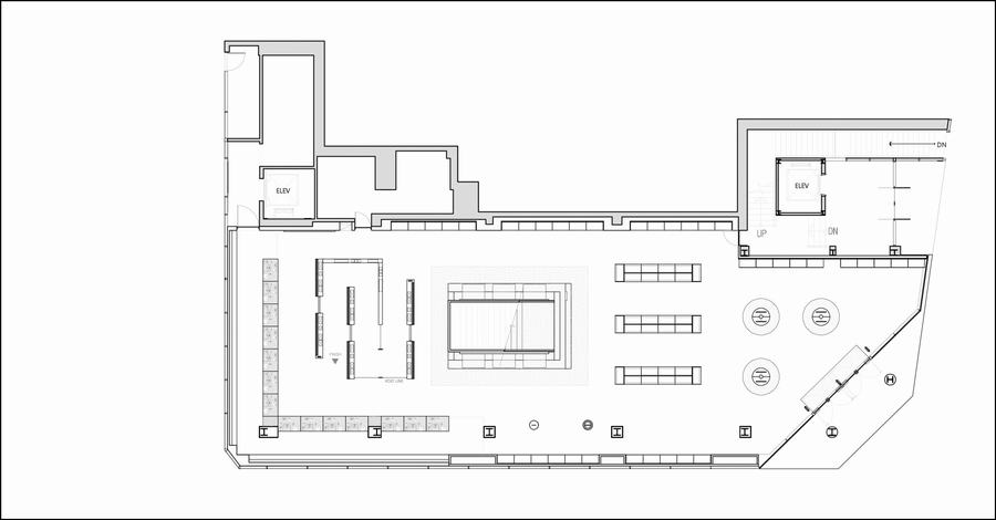
进入主入口后,迎接顾客的是主要的促销空间。这个区域的设计巧妙地融合了内部和外部的交通流线,使得清关和产品体验可以同时进行。为了保持整体设计的基调和风格,这个区域采用了通风和灵活的设计手法。同时,由于Oliveyoung品牌的周期性旋转特点,这个区域也成为了展示品牌特色和产品亮点的重要场所。
在材料选择上,Oliveyoung注重了现代感和质感的表现。他们使用了不锈钢、铝和混凝土等现代饰面材料,并通过抛光、喷砂或使用光泽哑光等处理方式,增加了同一材料的深度和层次感。这种材料运用方式不仅体现了Oliveyoung品牌的时尚感和现代感,也为顾客带来了更加舒适和愉悦的购物体验。
在空间布局上,Oliveyoung充分考虑了人流管理和服务的重要性。他们设计了一套高效的布局方案,以应对每天成千上万的不同国籍的游客。这个布局方案旨在让顾客在购物过程中感受到舒适和便捷,同时也能够快速地找到所需的产品和服务。为了实现这一目标,Oliveyoung将等待围栏巧妙地融入设计中,让顾客在等待时也能感受到产品的魅力。
此外,Oliveyoung还注重了标识系统的可见性和功能性。他们设计了一套清晰易懂的标识系统,以便顾客能够快速找到所需的产品和服务。同时,这个标识系统也成为了商店标志性设计的一部分,为顾客留下了深刻的印象。
Oliveyoung的新商店设计手册和程序充分体现了其对于全球受众的关注和尊重。他们通过灵活的设计理念、现代感的材料运用和高效的布局方案,为顾客带来了更加舒适、便捷和愉悦的购物体验。相信在未来的发展中,Oliveyoung将继续引领美容行业线下场景的新变化,成为全球美容行业的佼佼者。
本文由米尚丽零售设计网公众号原创/整理创作
本文图片设计版
请勿随便转载用于商业途径
(转载请在公众号/微信回复“转载申请”)



















