在纷繁复杂的城市里,平静的体验关乎内心的愉悦和自我照顾。身体护理品牌eios的第一家线下门店位于上海长乐路,在原有建筑的历史雏形中,用金属和木材创造了一个新旧对话的独特空间。每一寸都是对简单和纯洁的回归,一个与自己重新联系的地方,收获一场感官之旅。
项目位于上海市长乐路619号;店铺上方的老式招牌依然保留,昔日的字迹依稀可见。新空间建立了与过去的对话,呼应了身体护理的复兴周期。
全透明的立面处理模糊了内外的界限,给人平等、开放和舒适的印象。室内视野开阔明亮,路过的行人形成了流动的景观。空间中古色古香的木质天花板和砖石立柱自然流露,为理性的设计增添了一丝感性的存在感。设计在当下更新历史,新与旧在空间中交织,等待故事的展开。
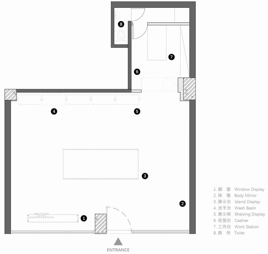
空间中的路线是开放流动的;三米长的岛屿作为视觉中心,自然形成了迁徙路线。顾客从进入商店的那一刻起就可以根据自己的直觉自由地向左或向右浏览,在保持视野开阔的同时增加了空间体验的趣味性。
收银台窗口的开口呈现出一个简单的几何形状,露出品牌标志性的黄色背景墙,在空间中明亮地呈现,在视觉上引导顾客的支付路线。
空间的主体材料回归了原色,保持了金属纯粹而简单的表现力。金属表面随着光线的微妙变化,为简单的空间增添了一些微妙的动感。而木材的随机纹理像皮肤一样真实,为空间增添了自然的细节。大自然的创造源远流长,令人着迷。
品牌标志性的黄色卷尺被巧妙地运用在整个设计中,从入口的吊坠线到收银台装饰的窗口开口,呼应了品牌的口号“每一寸肌肤”。定制的家具被设计成刚刚好大小,丰富而精确的设计细节允许灵活的可用性。这体现了品牌精益求精的理念。
中岛对面的墙壁展示架系统既是陈列柜,也是洗手盆。金属材料在视觉上的延续回到了本质功能。为了适应不同的需求,金属件设计为通过转动表盘来调节机架角度。
悬在岛上的吸顶灯以柔和的圆形消解了空间的硬朗线条,将空间装饰得如同一件饰品。吊坠灯的常规电线被改造成品牌的标志性卷尺,在突出品牌符号的同时保证了功能性。


























