在疫情时期,库米尼集团不会停下脚步,并以远见卓识和企业家的眼光展望未来——这些价值观一直是库米尼家族和公司集团的特色。因此,他们彻底翻新了位于乌迪内历史中心的Cumini Woman商店,这是一个充满风格建议的真正的时尚实验室,在这里,伟大的造型师的创作与新兴品牌的建议共存。
由视觉展示创意工作室设计的新库米尼女装店将简约的设计与创新的视觉元素结合在一起,没有装饰和色彩,让顾客沉浸在独特而优雅的购物体验中。
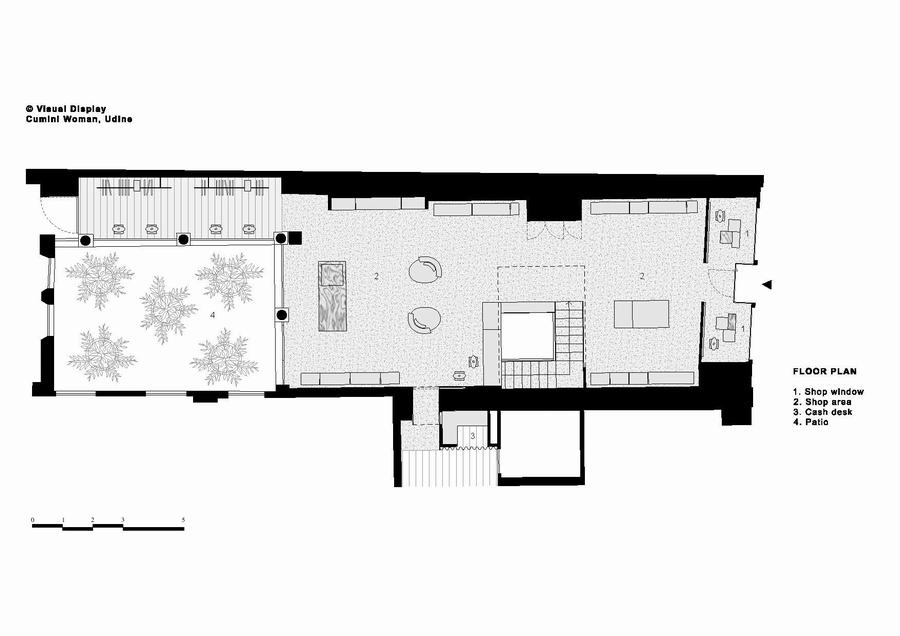
该店位于历史建筑的拱廊下,俯瞰弗留利威尼斯朱利亚乌迪内的历史中心,是东北部以及附近的奥地利和斯洛文尼亚的奢侈时尚领域的一个参考点,经过全面翻新,为客户提供一个独特而令人惊喜的内部场所。
事实上,商店的天花板是一个大型的现场视频装置,由Visual Display和Pixel共同设计,它改变了白天的空间和光线的感觉,并提供了一个有影响力但和谐的氛围。
内部的钢铁和玻璃与墙壁上的面纱和地毯的纺织品丰富度形成了有趣的对比;而该项目的中心元素是楼梯,它打断并勾勒出空间的流动,伴随着客户对地下室的注视。
展示系统用正交几何图形设计墙壁,向包豪斯的视觉艺术致敬,并向库米尼家族与设计的历史联系致敬:事实上,自1948年以来,库米尼家族已经能够在时尚领域创造一个独家品牌,并为寻求独特和定制购买的国际客户提供高端家具。
视觉展示项目的所有细节都是为了扩大购物体验,甚至是更衣室的体量,通过增加古老的柱子和历史建筑原始建筑的交叉拱顶,增加了地下室的空间。在室内,金属反射的纺织布瓦框以现代的方式重新诠释了威尼斯锦缎,并将客户置于梦幻般的拥抱中。


















