作为新购物理念的推动者,SND是一个倡导独立、以艺术形式呈现服装的交汇点品牌,为现代零售注入个性化血液。SND作为全新购物概念的推行者,SND主张独立、以艺术品的方式呈现服饰,为现代零售注入个性化血液。
对于Various Associates 来说,空间美学不仅仅是漂亮的外观。 设计实践认为,好的设计不仅要支持空间的运作,传递情感和品牌性格,还要扎根城市,影响当地文化。 范思哲在前滩太古里为开创性的多品牌时尚供应商SND设计了一家新的精品店。 尽管空间规模有限,但该店在上海最繁华的购物目的地之一中展现出独特的身份和庄严的姿态。 它传达了品牌不随波逐流、不被共同标准定义的独立态度。
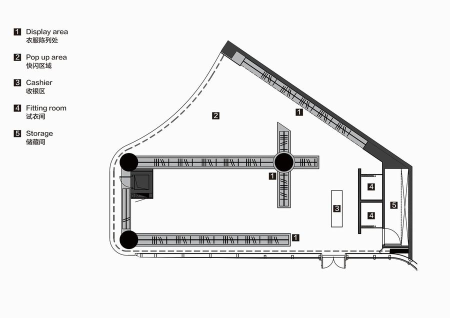
该场地占地约 136 平方米,挤满了一家精品时装店,介绍了数百个品牌的产品。原始空间的天花板高度相对有利。商店需要向里面的购物中心和面向外面的窗户开放。根据场地的情况,Vancial Associates打算创造一个具有层次感、建筑感和艺术感的空间,以延续他们为SND构思的其他商店的基因。为此,设计团队在空间中创造了几层悬梁,其灵感来自沙漠中古庙风化的粗糙纹理和破碎的美学。水平和垂直层次上简单而有力的结构关系保证了空间的通透性,也强化了空间的纵深感和商品陈列的优先系统。
每一层的梁柱充分利用高差,在视觉上扩大了空间。此外,管道和设备布置巧妙,隐藏在梁柱中,是工程的一大难点。形式设计符合功能要求,遵循连贯的逻辑,以结构美学为表现形式,从而产生一个理性与感性相结合的空间。在材料方案上,使用了粗糙的浅色纹理涂料,让人想起欧洲用米色石头铺成的地面。此外,悬梁的超薄石饰面呈现出质感的对比,在柔和的浅色调中呈现出坚实、粗犷的感觉。
有序的层次感贯穿整个场所。不同高度的分层结构引导人们的视线,提供舒适的视觉体验,同时将原本复杂的电气和机械管道铺设的天花板系统变成空间的特色和亮点。低饱和度的光滑绿色石板与粗糙苍白的墙壁和横梁形成微妙的平衡,共同为空间增添了优雅而原始的感觉。
位于收银台后面的试衣间,挂着绿色的窗帘,如同沙漠中顽强生长的植物,为空间注入了新鲜的活力。目前,张扬奇特的空间形态似乎是最受关注的选择,但SND更倾向于在其零售空间中呈现理性和低调的内敛。此外,Vancial Associates 也打算在设计创作中保持逻辑思维,不顾潮流,努力创造一个永恒的、传达品牌情感和性格的审美空间。毕竟,产品应该永远是零售空间的主角。

















