关注微信公众号:米尚丽零售设计网
关注后回复“店铺资料”即可获取十七套顶级店铺设计全套资料
【品牌店铺全套设计方案丨十七套丨概念方案+施工图+软装清单+消防机电图
随着越来越多的女性主动掌控自己的职业和生活方式,与任何他们想要的自由,和勇气对抗刻板印象,这些看似平凡的权力是不容易的,在我们看来,它既艰难又柔软,像一个复杂的和强大的生命力生长在温暖的沙漠。
通过多面弧形墙面,将整个空间进行半开放式隔断,重构出神秘柔和的展示环境。我们选择“沐浴在阳光下的女人”作为这个空间设计的概念,身体向温暖的地方伸展,展现自信、柔软、坚韧的美,这是整个空间想通过设计传达的品牌魅力。
我们设计和使用一些形状来表达不同状态下女性的生命力。方形表达坚韧,曲面表达内在柔软,圆形表达自信。在这些形式中,构建了不同空间的功能和所表达的情感和感受。人们一进入这个空间,就能缓解商业空间的浮躁,从上到下都感到平静。
为了强调整个店铺的质感和色调,它提供了一个像展览一样的空间。我们在整个空间的中心设计了一个弯曲的软膜天花,使柔和的光线以安静的方式漫射到陈列中,使服装更加优雅和有质感。同时,设计了一个无限大的射灯,灯光隐藏在天花板内,从内到外调和了精致的氛围。
通过弧形墙面与金属线架的结合,营造出点、线、面的完美和谐,再通过优雅简约的动线,将人潜移默化的引导到空间的深处,让客人可以主动探索整个空间,不仅满足了快节奏生活中人们的好奇心,也让空间更加神秘浪漫。
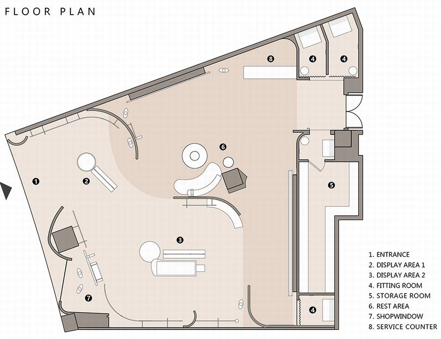
【平面布置图】




















