109Things位于南京市秦淮区莫愁路,越界魔城东南门,朝天宫对面。莫愁路是一条单行道。西边是五金配件和机电商店,但现在已经出现了几种商业形式。109Things的名称是经过与客户详细面对面的讨论后产生的。这是一家以进口零食、长筒袜、彩妆产品为主的商业零售商店,组合有趣。
原有内部钢结构夹层保留。夹层上方和下方的空间高度在一个人的手臂可以触及的范围内。整个空间包括一个三段阶梯空间和一个贯穿的通道。最让人印象深刻的是在三部分空间中,两面墙上的两个大小不同的方形窗户。人们可以透过这两扇窗户,斜着看整个空间。使用保守的方法来创建这个地方,内部订单将基于三种类型的产品建立。
在入口处,中庭高4米,夹层上下空间高2米。中庭顶部的天花板采用了一体式方形柔性膜,使其看起来更高,向上延伸。均匀柔和的光线覆盖下方显示区域。进入室内,游客可以看到一个完整的柔性薄膜天花板,它为走廊提供了主要照明。柔和的区域照明为空间流线保证了客人的柔和视觉体验,弱化了因层高有限而产生的压抑感。夹层中设置局部方形和矩形开口,连接上下空间。裸露的钢结构也揭示了它的过去。
刨花板、镀锌板、水洗石作为空间设计的材料语言。三种产品的展示区域同时被材料隔离和连接。入口处加了一扇窗户。游客通过三层的窗户观看内部,只能看到局部区域,并发现内部由一根绳子连接的三个“盒子”。内部所有橱柜、机架、木板、盒子等容器均以刨花板为基材。刨花板表面的粒状片段和镀锌板表面的雪花状图案增添了空间的立体感。水洗石材地板也给人留下自然朴素的印象。水洗过的石头覆盖了所有的内部地板区域,模糊了边界。
部分墙壁和展示柜以锡箔摩擦和折叠。镀锌板和锡箔具有不同程度的漫反射特性,使产品具有反射性纺织品的抽象感。手工折叠的锡箔,机械镀锌板和刨花板为立面创造了节奏的变化。
【空间透视图】
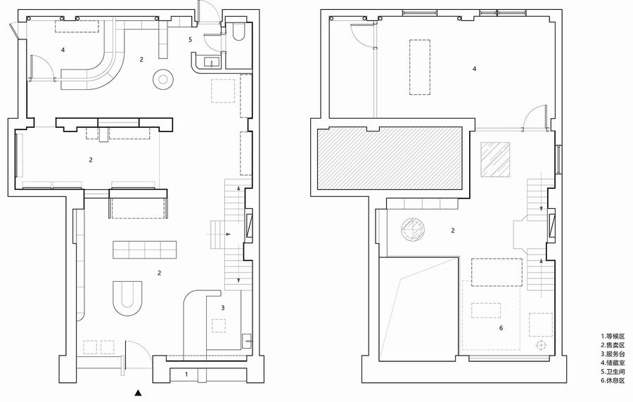
【平面布置图】

















