速写CROQUIS是国内知名的杭州江南布衣服饰有限公司旗下的男装设计师品牌,于2005年秋季正式推出。秉承“生活就是做出选择,时装也是一样”的设计理念,追求“这样也可以…”的生活形态,契合了当代年轻人的价值观,在中国自主男装品牌中的影响力越来越大。西班牙有本我们都很喜欢的杂志叫《EL CROQUIS》,是一本设计类的杂志,关于建筑、设计、艺术。翻开江南布衣的历史,大家会看到公司对于设计、艺术关注是如此强烈和着迷。因此我们把新的品牌叫作CROQUIS,2007年底因为推广的需要,也为了突出我们的越来越强烈的自信,品牌加强了中文的LOGO”速写”,从此CROQUIS作为LOGO的一部份退到后面。速写是所有绘画手法中最为快速而又最显功底的表现手法,在日常的创作过程中我们借此手段不断激发潜在的灵感。
设计公司Rafael de Cárdenas, Ltd.在北京三里屯为JNBY的男装品牌Croquis(速写)设计了一家新店。一个独特的零售体验,Croquis(速写)三里屯沉浸在一个有趣的变化和吸引人的流动的环境中。
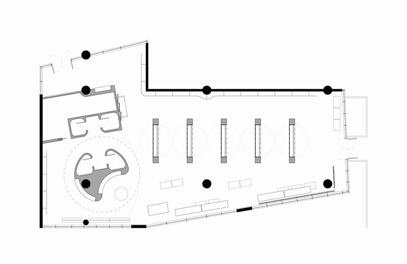
从商店的入口延伸,360°旋转橡木拱门的走廊允许无限的、惊人的重新配置,使客人不断发现和重新发现它。这个灵活的走廊在整个商店内固定了一系列模块化和可移动的家具。
在空间的另一端,一个巨大的类似灯笼的形式,容纳了试衣间和嵌入式显示器,可以调整到不同的色调,以提高情绪。
使用非常独特、精确调整的调色板制作而成,其中元素令人回味的材料,如古老的木材和氧化铜网,以及光滑飘逸的缎面镜子、穿孔铝和半透明的 LED 屏幕,整体营造出一种氛围 激进的活力和天生的温暖是平等的。
【平方布置图】















