协调亚洲为上海精通科技的千禧一代社区设计了一个混合现实的游乐场。这个1250平方米的娱乐场所通过分享真实世界的体验和社交活动,呈现了一种超连接和技术驱动的生活方式。
餐厅区域还设有一个尖端的“机器人酒吧”,柜台上方悬挂着一系列引人注目的月亮形状的灯具,进一步提升了未来主义的氛围。
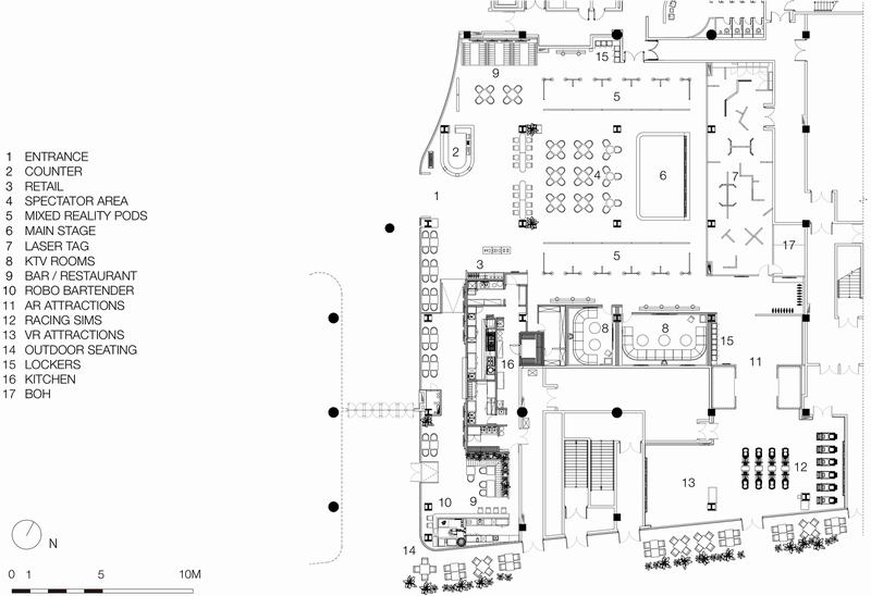
协调亚洲创建了一个混合现实中心,为渴望多样化的中国千禧一代提供娱乐、休闲和刺激体验。Planet One位于上海市中心,占地1250平方米,展示了以数字为中心的生活方式。该空间提供了多种机会进行现场游戏比赛、讲座、编程研讨会和活动。作为一个多功能和灵活的平台,该平台积极吸引线上和线下的客户,模糊了虚拟领域和现实之间的边界。
该设计采用了一种美学,将虚拟体验融入现实社会活动。整个场馆使用了铜、铝和玻璃等原材料,为充满动态数字表面的未来空间增加了一种真实性。穿孔和波纹铝墙反射LED墙的光线和颜色,唤起一种空灵的情绪,连接数字和物理环境。围绕着主舞台的透明可折叠LED墙,让不同区域的顾客之间可以看到,并在视觉上连接活动的观众和参与者。聚氯乙烯地板上暖色块的组合,作为空间不同区域的视觉引导和区分。
天花板上的LED灯线系统贯穿整个场馆。随着动态色彩的脉动,这个天花板灯装置在空间中引导客人。LED灯线在主舞台形成了一个有影响力的网格结构,给该区域一个不可否认的焦点。
主舞台的设置提供了各种各样的活动,从表演到直播电子竞技比赛,从瑜伽课程到编程研讨会。结合了舞台、大型LED墙和舒适的座椅,这个区域是不同社区可以聚集和会面的地方。
不局限于一个简单的“游乐场”,一个精心策划的线下数字体验集合旨在吸引渴望兴奋的年轻人群。一系列受欢迎的节目满足不同兴趣的顾客。激光枪战竞技场呈现出各种迷人的灯光效果。虚拟现实游戏站配有悬挂屏幕,可以让观众以第三人称视角观看游戏。还有无人机模拟器,以及供冒险玩家使用的室内飞行。
除了提供一些最尖端的设施,餐厅区域还设有一个尖端的“机器人酒吧”,完美演绎这个高科技游乐场的场景。柜台上方悬挂着一系列引人注目的月亮形状的灯具,进一步提升了未来主义的氛围。
【平面布置图】



















