WEI STUFF空间选择使用了很长时间的旧红砖,切成3厘米的薄片。在地面和卡座位置均匀的铺有线形图案,呈现平整的平面和立面,并在间距处加入浅灰色的混凝土材料,有效的压制了红砖本身粗糙的材料语言。在变得干净之后,它被涂上一层清漆,以赋予它温暖的纹理。在密封美丽的同时,它也经得起时间的考验。
营造诗意的光影,营造优雅现代的空间。一侧的玻璃窗引入了自然光,帮助粗糙的红砖空间融入现代和整洁的感觉。在这个镜像空间中,人、器具、家具和植物景观相互映射。真实影像与镜像影像相互叠加、交织在一起,创造了人与物之间有趣的关系。
红砖带来的复古韵味,无论在哪里使用,都能让空间在时间的洗礼后展现出深厚的传承。尤其是在当下的复古潮流中,我们让红砖成为一种记忆的象征。室内部分使用了最重要的材料,营造出微妙的和谐感;流动的空气和变化的光线都是设计考虑的一部分。最后,在自然与城市、室内与室外、过去与未来之间创造一个不间断的叙事空间。
面向休闲区域的一侧设置了一扇可向上推的窗户,天气宜人时可以完全打开,让室内外连接,增加互动。在窗户上,我们没有使用玻璃作为隔断,而是使用了“透明纸”,让内部光线显得柔和温暖。
收银台采用天然火山岩作为饰面材料,在视觉和触觉上给人带来深刻的体验,提供身临其境的愉悦外观,让我们的眼睛和所有感官都被唤醒。从进入形成完整的体验感。
除红砖外,屋顶和地面选用了“灰白”为主色,辅以白色的挂衣道具和储物架,柔和温暖的光线透过玻璃窗,仿佛正在上演一出舞台剧。空间里的客人就是戏里的人,每个人都是自己故事的主角。路过的路人,就像在看一场表演,不禁想象自己也是其中的一员。
楼梯构成了一道风景线。我们没有改变楼梯的位置,而是对旧建筑进行了大量的结构改造。在进入楼梯前,一面墙上安装了一面镜子,立方体块组合形成的风景与镜子中的虚拟形象形成视觉形象连接。原本单一的空间在视觉上变得开阔,镜子的加入也让原本单调的空间变得更加有趣。
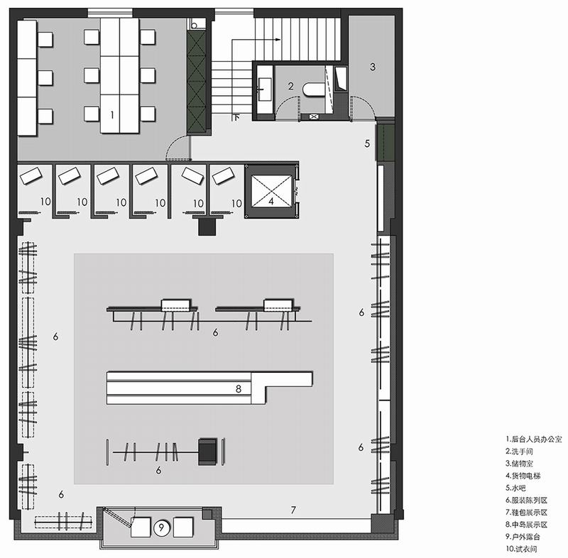
二楼为VIP展示区。设计师希望整个消费体验有一种仪式感。因此,空间采用了教堂式的建筑形式来契合该买家店的品牌信念,并延续了一楼中轴线的构成和对称的设计语言。此外,空间的仪式感和神圣感让空间代替了服务员的某些部分,给人以自由和一点庄严感。
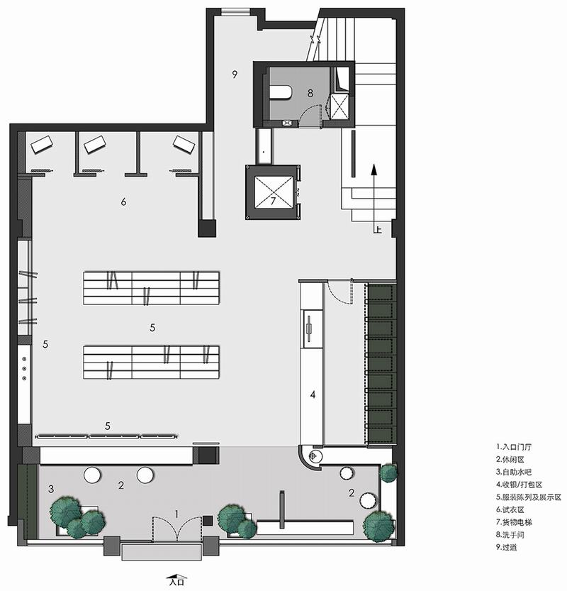
【平面布置图】
















