随着今天消费市场的变化,烘焙行业需要巨大的变化,原有的固化模式烘焙空间体验模式正在被打破。如何把握消费者,塑造这个时代的消费品牌形象,成为烘焙品牌亟待解决的问题。
一个成立30年的烘焙品牌,仍然面临着市场变化带来的危机。长期以来,无论是视觉风格还是购物体验,烘焙行业都在向公众传达“传统”的既定烘焙空间印象。买面包的过程总是局限在“买吃”阶段。公众迫切需要一种新的消费体验。在这个购物场景中,不仅要有“吃”,还要有“趣味”。
作为品牌一次新的尝试和革新,品牌需要一个具有沉浸式体验的面包体验空间,而面包工厂自然而然成了本次设计的主题。与传统烘焙注重面包的温度和质地不同,我们认为一种“快乐购物”的体验更能打动消费者。让进入空间的顾客拥有选择任何产品的乐趣。店里的所有产品都是同一天刚出炉的。这种新制造的状态基本上与工厂的生产方法一致。
我们希望这个面包工厂传递的不仅是一个买面包的地方。这里可以承载更多可以满足这个时代消费者的需求和可能性。顾客可以在面包工厂购物、拍照、享受美食、分享和进行社交。面包工厂在商业模式、空间设计、品牌视觉设计等方面给整个烘焙行业带来了新的可能性。
在商店的前面有一个完整的展示空间。我们的灵感来自于工厂将要放置的大而醒目的工厂名称,同时我们也放大了品牌标识的字体,增加了工厂的主题和氛围。巨大的显示屏每天推出产品视频,是强大的品牌推广。
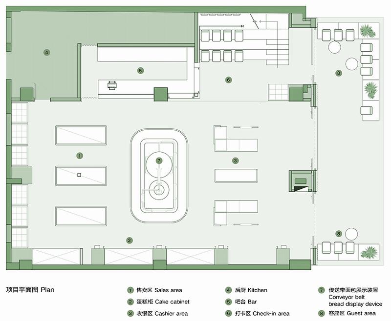
进入室内空间,我们用粗体黑色无行文字填充了整个上部室内空间。配合整体不锈钢材质的祝福,将客户置于巨大的工厂“生产口号”下。不锈钢、马卡龙绿色金属烤漆板、电子屏幕构成纯粹有趣的材质变化。店内产品展示柜以三种不同形式设置,形成丰富的店铺流程。中央流水线式的展示道具是整个空间的点睛之笔,圆柱形的容器被LED屏幕包围。
【平面布置图】














