宽窄巷子以其历史建筑形式而著称,是古成都最后的遗存,是历史延续的缩影,也是北方胡同文化应用到南方的罕见例子。从清代的军事宅邸,到充满现代文化气息的商圈,宽窄巷子一直是顺应时代潮流、展望未来的体现。
位于宽窄巷子的好利来1992概念店旨在以当代的设计手法向传统致敬,并回顾品牌成立以来的十年发展历程。在最终确定概念时,Some Thoughts 认为,通过某种风格驱动的设计,而追求超越时代的“形式”和“物质起源”之间的关系,从而可以产生我们在历史空间中对传统的反思。
通过进一步阐明商品和材料之间的关系,我们发现面包店在空间使用和规格方面明显区分玻璃砖,瓷砖。然而,追溯这些物品的制造过程,一个共同的特点是,当液体在高温下冷却时,会产生一种易碎但有形的固体。
面对传统向现代性的提升所赋予的普遍性,一些思想期望赋予内部全新的秩序,并被公众重新理解和接触。玻璃砖作为过滤器引入光线,与整个空间中材料的粗糙感相得益彰。随着时间的推移,光线在空间中的折射和漫射,呈现给参观者一种千变万化的并置感。
设计师试图通过强调装置和建筑之间的相互作用来重新优化经常供奉在历史建筑中的视觉点。因此,视觉冲击力得到了延伸,在商店的旅途中,生硬的视觉符号也因此变得模糊。
参观者在精心编排的空间中沉浸式探索传统和现代,其中室内设计代表了某种情感背景,并向公众介绍了一个可感知的空间。
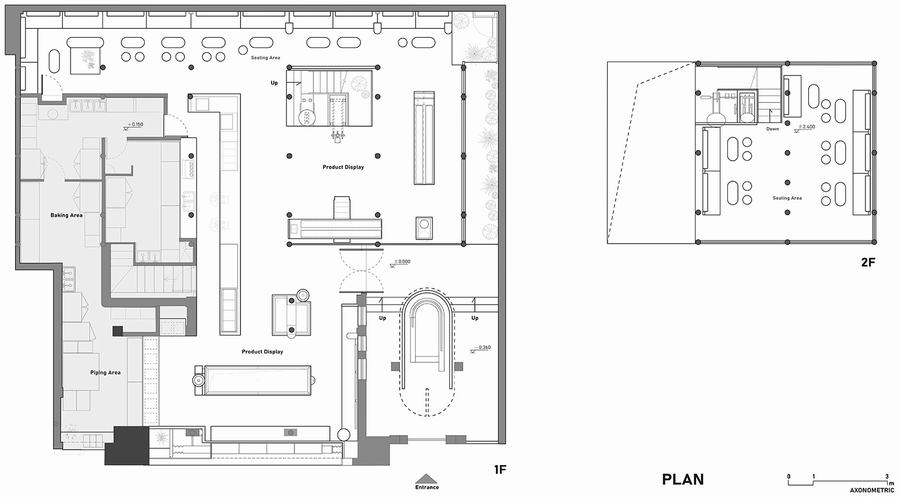
【平面布置图】
















