在电子商务发展的推动下,零售空间已经从单纯的销售空间转变为实体品牌广告、体验式展厅和第三空间,供顾客反映、休息和重置。
BLUEMO成立于2019年,愿景是成为中国最时尚、最专业的眼镜品牌。ICD承担了BLUEMO的品牌塑造,将品牌形象转化为店铺设计和所有视觉展示,并以“我穿,我在乎”为精神口号。
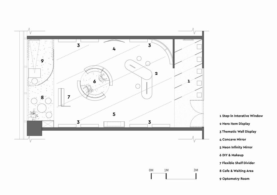
该品牌标准形象的第一个实践是BLUEMO 001,这是一家从其“工作空间”的一部分进行翻新的商店。BLUEMO 001位于中央商务区,是中国杭州最高的眼镜店。它还充当品牌的陈列室和附近白领的咖啡休息场所。
最大的挑战是如何邀请人们去到办公楼的9层。我们取下立面的实心墙,插入一个蓝色的盒子作为互动窗口。从可见光谱中提取波长为460nm的有害光和有益光之间的点,提取品牌标志性蓝色Pantone2728。这种势不可挡的蓝色产生了强大的阻止力量,就像我们的生活中充满了电子蓝光一样。进入室内,有角度的透明面板形成自然入口,引导人们顺利进入主要销售空间。这里有一个平静而柔和的开放空间,从充满活力的蓝色中给人以呼吸。
阅读、运动、驾驶和造型,我们根据客户的需求将600副眼镜分类,包括一面展示每种脸型最佳眼镜的墙壁。
我们在店内放置日历展示道具、周一到周五包装等“时间元素”,温馨提醒您,眼镜应根据时间、场合、情绪进行更换。在半透明VIP区,客户可以个性化画框的图形。在验光室外,人们可以在沙发上喝咖啡,让等待变得轻松。
ICD创造了强大的品牌识别和优化的购物体验,提高了BLUEMO的回购率,使其成为生活方式眼镜品牌。

















