凭借其公认的领先珠宝和钻石品牌地位,ANANTA JEWELRY在其长达三十年的历史中迈出了具有里程碑意义的一步,决定重新设计公司的形象和零售空间。
从高级珠宝业务到生活方式珠宝品牌的转变,ANANTA为其产品带来了多样性,可满足各种需求,可满足所有年龄段,口味,行为和预算的客户的需求。
更重要的是,新的品牌标识旨在引入一种新的观念和价值,以使钻石和彩色宝石珠宝更易取用,可穿戴,成为每个人难忘的一刻,同时又保持该品牌的最高水准。
对于此次品牌重塑,IF负责室内设计和环境图形,所有这些均基于名称“ ANANTA”及其梵语中“永恒”的概念化定义。名称的字面含义与品牌无限徽标的交织线条之间存在相对性。
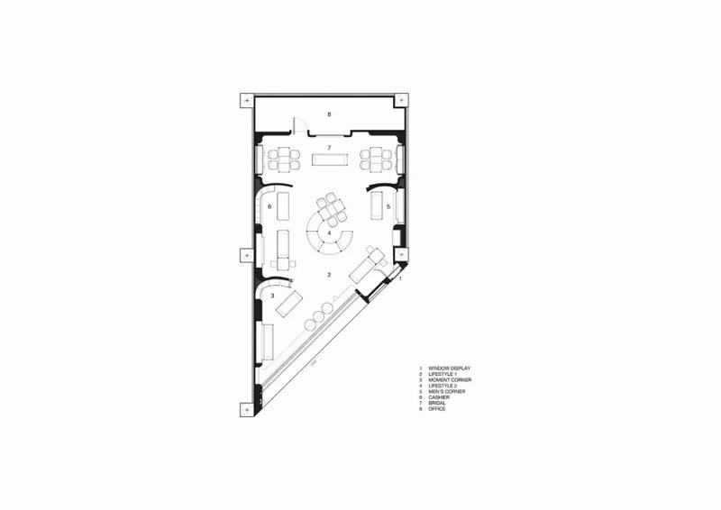
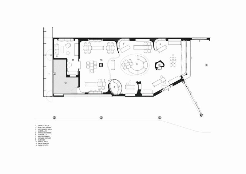
IF根据标志的独特弧线开发了内部平面图,提供了空间的连续流动,包括折叠和弯曲的弧形墙,这些弧形墙确定了商店的功能性转角。
该设计将室内划分为三个部分。“生活方式”部分占据了大约70%的空间。为了展示该品牌的生活方式珠宝系列,IF将奢华与乐观精神和好玩的噱头相结合,使该地区看起来不那么令人生畏,更容易接近。业主可以调整装修,保持空间和用户体验的新鲜和刺激。
“男性”部分包含在同一区域中,其中显示了专为男性用户设计的作品。该地区的装饰采用黑色,海军蓝色等深色颜色,以白色为整体氛围和色调形成了鲜明的对比,从而使装饰简约。
“ Moment”(用于定制样式和价格的生活方式珠宝产品的区域)旨在体现有趣和优雅的氛围。最后一个区域“新娘”侧重于结婚戒指,传达女权主义和梦幻,活泼的女性精神。“高级珠宝”专区的设计特色在于源自ANANTA品牌的产品,其精髓依然精巧,却更加友善和温暖。
室内空间和环境图形设计使用的色调与该品牌的原始和新公司色彩相对应。从正面看,由于蓝色和海军蓝色的存在,这家商店的整体气氛看起来更加生动。棕色是该品牌的原始公司色彩,与白色以及其他装饰元素(例如家具)一起使用。
为了为品牌创造一个更易于理解的形象,设计团队使用了使ANANTA与其他类似机构不同的色彩和材料。
【平面布置图】






















