JINS睛姿是日本著名的快时尚眼镜品牌,由上市公司(株)JIN百分百出资成立,目前中国国内店铺已经超过80家,全球店铺超过300家。日本JINS总部成立于2001年4月,中国分部成立于2010年12月,均持续快速成长。JINS睛姿以其高质量产品、超优质的服务、丰富多样的产品系列和时尚的款式、平民化的价格赢得了众多消费者的信赖。
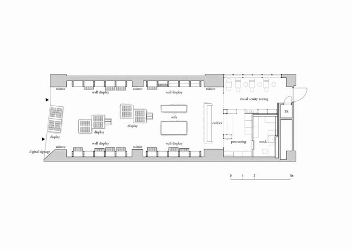
JINS Tokyu Hands池袋商店是眼镜品牌JINS的分店,位于池袋的Tokyu Hans百货商店。JINS是一家大型眼镜连锁店,在全球拥有500多家商店,其正规商店的设计由类似工具箱的木制橱柜组成,面临的挑战是提出一种独特的空间体验,同时使用现有家具保持与正规商店的联系 模块以及使用木材。
我们找到的解决方案很简单。我们选择通常在物流中使用的扁平运输结构木制托盘作为空间组件的基础,并从中提取各种类型的家具。这样,一方面,家具使散装产品的休闲性和熟悉性进入了商店空间,并为各个年龄段的男女营造了友好而可及的氛围。另一方面,在仓库般的空间中源自托盘的家具集合唤起了与托盘一起运输并展示在其上出售的眼镜产品的叙述。
产品与家具之间的这种虚构叙事使家具的存在和意义更加强烈,并且在使客户的购买体验独特而独特方面起着重要作用。岛式家具的货盘故意彼此稍微移位地堆叠在一起,以使它们看起来像被大致堆叠在仓库中。同时,货盘表面涂有高光泽的聚氨酯涂料,而底部货盘没有甲板,以免显得太重以及保持地板间隙以便于清洁。
这些对客户和销售人员的良好考虑表明,这是一件具有高品质家具的思想。以相同的方式,在继承托盘的基因和背景的同时,通过调整其形状以满足每种功能来创建壁式家具,沙发凳和镜子。此外,墙壁和地板上都涂有随机图案的图形,看起来像是在建筑工地上剥落的墙纸碎片,并且公司名称和序号都印在每件具有原始字体的家具上,从而给人以大众化的印象。
这些精致细节的积累使家具既干净又优雅,并与托盘和胶合板的随意性融为一体,同时补充了使用托盘作为仓库展示的叙事世界。我们认为,室内设计的创新之处在于,托盘的环境已经在不同的情况下得到了广泛使用,是一种批量生产的标准化产品,可以满足眼镜产品的零售需求,因此,这些产品可以说出叙述和 吸引顾客的情感。

















