品牌店“什物”是一家销售日本产品的商店,产品和精致生活有关,商店的地址位于南京有名的景区-南京总统府旧址旁,商品种类包含器皿、女装、配饰等类型的手艺人定制作品。项目的委托人经历过日本的泡沫经济时期,经过时代洗礼,委托人更加能读懂匠人的以物传情,并且以一个传承者的视角传递匠人精神。CATS设计在整个项目上也表达了这种精神。并且这种精神在空间中得到体现。
张拉铝网挂浆吸取了中国古法造纸的原理,所采用的原浆纸浆,发现其纸絮长并且附着力很强。我们以试验得出的合适比例将其溶入水池,通过挂浆、晾晒,在现场制作完成了20张铝网。纸絮网墙坚固,灵活,透明,斑驳,多变,时而封闭,时而通透,既是功能理性的产物,也有独特的美学,是空间硬件上最有表现力的主元素,这种手法传承自隈研吾先生的材料探索精神。
商店主要售卖的产品是日本布衣家须藤玲子的布料作品,(须藤玲子是日本著名的布料大师,90年代须藤玲子的作品就已经被纽约MOMA 收藏)。项目的委托人和须藤玲子私交甚好,委托人希望空间中展示须藤玲子的作品。CATS设计为了尊重须藤玲子,将须藤玲子的大型布品整合在空间设计中,布品可灵活悬挂在OSB板制成的1.4m x 1.4m网格矩阵下,使其成为划分空间的软隔断。商品成为隔断,隔断也成为商品,这样的设计模糊了空间的界限。大面积的网格矩阵内隐藏放置了不锈钢吊杆,在举办玲子布品的集中展览时,便于布料的灵活挂装和展示。
吊顶网格矩阵内暗藏的LED灯带,光线经顶面褶皱的铝箔漫反,投下柔和均质的暖白光,营造明亮舒适的氛围并减弱光线影响购物体验的暗影。
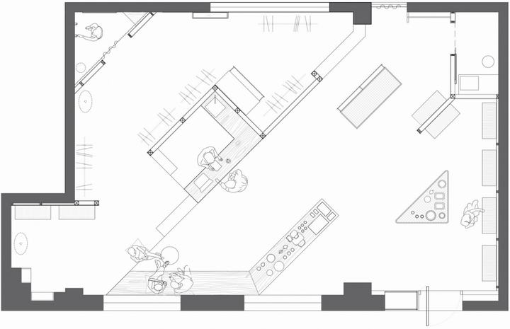
“什物”店铺选址在南京游人如织的1912商业街,没有设置很通透的橱窗和门,却试图反其道而行之,将门做实。客户如果愿意推开门,将看到内部别有洞天。这样的设置对顾客进行了一次筛选,也让品牌和别的小零售商品做了区分,凸显其品牌定位。和在线购物不一样,什物更注重客户的体验,网墙在平面上以45度扭转呈现,并逐级升高,鼓励顾客自在绕行其间,在入口区挑选器皿,在相对私密的抬高区尝试服装。空间中,在吧台旁的地柜与台阶交汇处的角落处,通过合围,开辟出一个休息区,这个休息区可以方便店主不定期举办小型活动,增加老客的到店频次。
最近几年,零售空间设计往往形式大于内容,浮夸的元素的表现,营造所谓的网红空间,没有真正的空间内涵。

















