这是一个在大森站附近的租户建筑里的日式烧鸡餐厅的平面图,大森站附近有很多餐厅。在这个餐厅众多的繁华街区,已经有很多相互竞争的餐厅,所以我们决定把所有的座位都做成半私密的,以区别于其他餐厅。
当现有的内部被拆除时,GL粘结的痕迹和剩余的混凝土框架和粗糙的混凝土块被暴露出来。为了有效地利用有限的空间,我们选择使用现有的框架而不修改它,对于新的内部饰面,我们选择了与现有框架一样好的材料感觉瓷砖。
瓷砖被仔细地一个接一个地磨去表面的釉面,为了给瓷砖一个地球一样的纹理,非常材料本身。黑色的瓷砖经过研磨,露出了原来的颜色和淡黄色。黑色单独用于大厅,温暖的黄色斑驳的颜色用于私人房间。
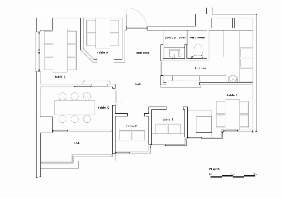
客房的位置是通过蜿蜒的H2.1m隔板,就像一笔一划,而楼层平面图的灵感来自于建筑立面的之字形设计。客房出入口采用了短的“nijiriguchi”形式,类似于不等边三角形开口,创造了一个开放但高度私密的空间。
室内用聚光灯照亮,以突出瓷砖表面的体量。在灯光的照射下,瓷砖表达了精心手工的研磨痕迹和材料的慷慨。其目的是创造一个洞穴般的空间,包裹着简单的烤肉与土地的力量和柔软。





























