PMT Partners受委托为国潮茶饮品牌“茶理宜世”设计了一个充满变革性的建筑室内设计,以“岭南绿院”为主题,旨在为顾客提供一个独特而难忘的空间体验。在这个设计中,我们充分利用了岭南地区的特色,将传统文化与现代茶饮品牌完美结合,为顾客带来一种全新的生活方式场景。
延伸阅读:发光字是店铺设计很重要的元素,用对发光字才能让空间更出彩。但是还有很多设计师对发光字一知半解,闹出笑话。【精】深度解析广告字:一篇文章带你全面了解“发光字”和“不发光字”
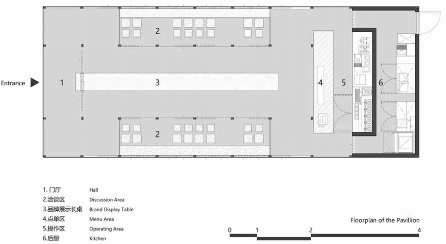
这个设计围绕着一个让人联想到中国汉字“回”的庭院配置展开,通过巧妙的空间布局和结构设计,营造出一个既开放又私密的空间氛围。建筑框架主要由预制钢材制成,既保证了结构的稳固性,又营造了一种开放和连通性的感觉。绿色百叶的战略性整合取代了传统的固体分区,为空间增添了自然的气息和灵动的美感。
在空间布局上,我们最大限度地减少了固体结构的使用,选择了开放和透明的空间布局。明亮和透明为我们创造的空间氛围定下基调,使顾客能够在轻松愉悦的环境中品味茶饮。通过调节百叶,空间可以在半开放和相对私密之间自由转换,既满足了顾客的社交需求,又保证了他们的私密性。
在设计中,我们特别注重与日常生活的差异,通过强调透明和轻盈来培养不同的空间仪式。例如,中央庭院周围的走廊和引人注目的8米公共桌子都是设计的亮点。这些元素不仅为空间增添了层次感和立体感,还使得整个庭院充满了叙事的深度。桌子的设计更是别具一格,避免了传统的底部支撑方法,而是采用从屋檐延伸的架空梁进行悬挂。这种创新的结构设计既增强了空间的感官体验,又体现了我们对透明和轻盈的追求。
此外,我们还在设计中融入了岭南地区的传统文化元素。满洲窗、压花玻璃、手工木窗帘等记忆通过现代设计转化为新的品牌元素,与岭南四合院的传统氛围交汇在一起,为顾客带来一种穿越时空的奇妙体验。这些元素不仅构成了伴随人和品牌成长的情感连续体,还使得品牌空间的呈现不再局限于纯粹的商业逻辑,而是成为了一种理想化的生活方式场景。
在这个设计中,我们还特别关注了顾客的情感体验。每个人都有儿时熟悉的气味和味道,以及对房子的生动记忆。因此,我们在设计中结合了花卉和岭南的主题,以及我们熟悉的压花玻璃,让顾客在品味茶饮的同时,也能够感受到一种情感上的共鸣和归属。
PMT Partners为“茶理宜世”设计的这个建筑室内设计是一次成功的尝试。我们充分利用了岭南地区的特色和传统文化元素,通过巧妙的空间布局和结构设计,为顾客营造出一个既独特又难忘的空间体验。这个设计不仅展示了我们对传统文化的尊重和传承,也体现了我们对现代生活方式的理解和追求。我们相信,这个设计将成为“茶理宜世”品牌发展的重要里程碑,为顾客带来更加丰富的品牌体验和生活方式选择。






















