西安作为世界四大古都之一,拥有着悠久的历史底蕴和众多的古代地标。然而,在新能源汽车快速发展的今天,如何将这座古老城市的魅力融入现代零售空间,成为了一个充满技术属性的挑战。
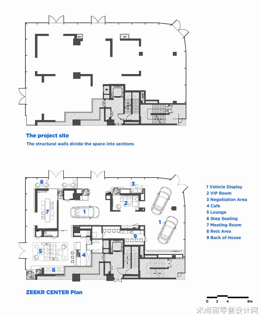
项目场地位于一栋现代公寓楼的一楼,拥有三面透明的玻璃幕墙,为空间提供了良好的外部展示立面。然而,建筑的结构墙成为了一个阻碍,将空间划分为不同的部分。为了充分利用这些场地条件,我们采用了新的布局策略。
与传统的开放式汽车展厅不同,我们沿着承重墙布置空间,并在中心创造性地放置了一辆展示车,以满足功能需求。这样的布局不仅让人们可以从展示区、用户区甚至幕墙外瞥见展示车辆,也激发了人们的兴趣,鼓励他们探索和发现。
为了融入西安的古城场景和文化,我们在贵宾室和洽谈区之间设置了共享景观,将自然无缝融入空间。贵宾室的屏风采用金箔和蓝色装饰,形成一个抽象的古城场景,向古代文化致敬。同时,我们在空间中加入了大量浅米色的天然砂岩,代表着城市的历史底蕴。不锈钢元素的点缀则代表着现代科技,与古城文化形成对比。
而作为西安的历史象征,千年银杏树更是为这座城市增添了浓郁的艺术气息和人文气息。为了将其融入零售空间,我们利用现代技术将银杏树变成了一个令人惊叹的艺术装置。同时,我们在设计中加入了Klein Blue等现代元素,以此架起汽车品牌的技术属性与城市的地方印象之间的桥梁。
通过这样的设计,我们成功地将西安这座古都的历史底蕴和新能源汽车的技术属性有机地融合在一起。这个新能源汽车展示空间不仅展示了现代科技的力量,也展示了西安作为古城的独特魅力。它成为了连接过去与未来的桥梁,为人们提供了一个欣赏历史文化和探索科技创新的场所。
本文由米尚丽零售设计网公众号原创/整理创作
本文图片设计版权来源MOC DESIGN OFFICE(侵删)
请勿随便转载用于商业途径
(转载请在公众号/微信回复“转载申请”)

























