在上海这座繁忙的城市中,街道上人来人往,生活与社交交织在一起。而在这熙熙攘攘的太原路上,一座迷人的建筑——3½店,以其规模宏大却又充满克制的外观,吸引着无数游客和观光者驻足观望。
作为一个对平衡性和多样化进行深刻探索的项目,3½店的建筑设计展现了其独特之处。从材料选择到入口设计,再到标志的精心打造,都彰显了设计师对建筑融入街道结构的用心。这里,建筑不仅是一个独立的存在,更是与周围环境相互融合,近乎有机地欢迎着每一位游客。入口设计精心打造了一个避难所,让人可以在情感期待的状态中徘徊,预示着等待他们的非凡感官之旅。
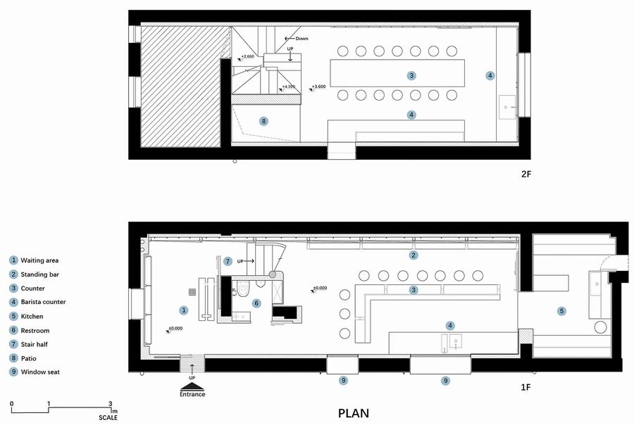
在空间组织方面,对话的艺术贯穿始终。一座迷人的l型吧台优雅地横跨整个空间,成为产品和服务感官接触的焦点。通过保留设计语言和行为模式的无缝集成,商业设计中的符号表现得以转化为对感官维度的深刻理解。
登上上升螺旋楼梯,二楼展开作为一个多面避难所,游客可以沉浸在一个既充满厨师厨房专业精神又放松的氛围中。这个空间不仅仅是日常运营的场所,更是产品开发、行业分享和偶尔聚会的中心,将真实与创意融合在一起。
在建筑材料的选择上,有机树脂和玻璃纤维的相互作用创造出散发出随机性和相互联系的迷人纹理,展现了对自然与人类智慧之间的和谐相互作用。在3½店,我们努力在建筑结构与周围自然元素之间取得微妙的平衡,使它们完美和谐地共存。
因此,3½店不仅是一座建筑,更是一个巧妙融合了商业设计和感官维度的空间,让游客在其中体验到别具一格的社交与文化交流,创造出独特而可持续的城市体验。
本文由米尚丽零售设计网公众号原创/整理创作
本文图片设计版权来源SomeThoughts Studio(侵删)
请勿随便转载用于商业途径
(转载请在公众号/微信回复“转载申请”)



















