上海TX淮海作为青年能源中心的代表,是上海著名的购物胜地。它以其丰富的快闪店和引人注目的艺术装置而闻名于世。这里聚集了许多在线时尚品牌的旗舰店,为购物者们提供了一个超越数字空间的独特购物体验。
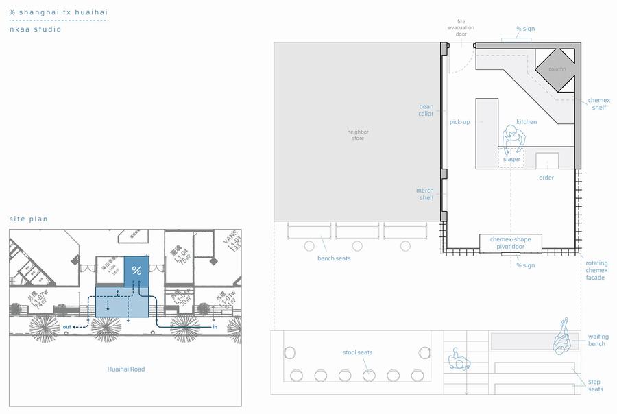
在这个时尚的购物中心里,有一家独一无二的商店引人注目。它由越南建筑设计公司NKAA Studio设计,灵感来自Chemex独特的沙漏形状,这是一种标志性的手动倒咖啡机。这家商店周围摆放着许多透明丙烯酸材料制成的chemex形状,它们被装置在一个网格状的结构中,随着微风的吹拂,发出沙沙作响并旋转起来。这种简单而引人注目的设计使得整个商店充满了艺术氛围。
进入这家商店,您会被大门所吸引。这个大门的形状与经典的玻璃器皿相似,给人一种独特的视觉享受。当您踏入店内,咖啡的香气扑鼻而来。友好的咖啡师们正等待着为您提供一杯美味的咖啡。他们擅长调制各种口味和风味的咖啡,让您在购物之余,能够尽情享受一段悠闲的时光。
上海TX淮海购物中心不仅是一个流行的快闪店聚集地,也是一个展示艺术装置和品牌旗舰店的场所。越南建筑设计公司NKAA Studio以其独特的设计理念,将Chemex沙漏形状与透明丙烯酸材料相结合,打造出一个引人入胜的商店。在这里,您可以感受到简单而引人注目的设计所带来的艺术氛围,并品尝到美味的咖啡,享受友好咖啡师们的服务。无论是购物还是休闲,上海TX淮海都能满足您的需求,给您带来难忘的体验。













