nigo位于南京市秦淮区国创公园。它位于文化创意产业园附近,该产业园由一个老工业工厂改造而成。它辐射了大量的年轻上班族、购物者和周边社区的居民。nigo于2014年在陕西省西安市成立。其品牌风格非常注重对日本仪式精神的探索和餐厅环境的独特创造,深受年轻受众的喜爱。作为南京的第一家店铺,如何契合历史建筑的气场,完成本土化的创意转化,凸显NIGIO品牌的多元化,成为设计团队在这个项目中试图探索的设计问题。
设计团队在分析现场环境和功能需求后,从东方建筑文化中汲取灵感,将南方民居的干柱建筑意图与日本传统民居的“一层架空”特征相结合。建筑是一种在小空间中充分创造可达性的空间重构方式。
在设计之初,考虑到沿街空间与街道之间的关系,强化场地的边界感,外部立面的深蓝色铝板堆叠,让人对隐藏在狭窄玻璃门后的隐藏世界产生好奇。
在尊重和延续历史建筑整体框架的基础上,设计团队保留了内部覆层纹理和原有的屋架,并在红砖斑驳的厂房空间中建造了深色风格的铝钢框架。增强空间的“戏剧性”特征。设计了一个新的空间,在原有的框架中并置,呈现出新旧交融的状态,低调地融入了日本文化的和谐与沉默,成为城市中美食爱好者探索和探寻的必去之地。
在材料的选择上,我们注重材料质感与人的关系。因此,根据居酒屋的形状,我们选择了两种材料,shoji纸和原木元素,它们具有交互的物理触感,并与钢框架围合的空间相融合。在狭小的空间里,人们感觉更亲近。与混凝土相比,钢结构作为主要材料具有连续性和清晰度的优点。因此,突出结构构件之间的联系,可以让客人更直观地感受到空间中的结构表达,从而加深印象。
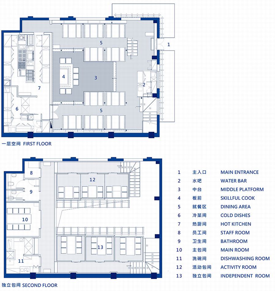
设计团队考虑了空间的高效布局。新建成的钢框架将紧凑的餐厅内部切割成两层空间。二楼包间的设计,围绕中庭的半封闭结构,满足了私人聚会的需要。首层重点还原传统居酒屋料理的开放氛围,以此来区分它,也是商业空间普遍化基础上的地方改造。
舞台中央的烹饪行为被顶部怪物装置的氛围烘托,灯光的运用强化了空间中央的视觉焦点,让人联想到日本武士葛饰北斋版画中奇形怪状的面具,给观众一种戏剧性的舞台感。


















