基地位于桃园村,毗邻华侨城和唐朗山。它位于南山区和福田区之间。因为有山,才有世俗与逃避并存的独特气质。就像阳光透过树枝洒在脸上,舒适而轻松而不咄咄逼人。因此,我们设置了“抽象森林”的主题,试图用“森林”来重建一个在社区中自然生长的“桃花花园”。减少装修对环境的负担,让店铺看起来就像生长在这里。在第二次改造后,我们在空间中安装了回收的旧木材广场、废弃的大理石和门窗轨道。尽量减少新店装修造成的额外材料污染,保留旧物的时间印记。
在除臭、抛光的同时,尽量保持木材广场的原始状态。它们在顾客面前毫无保留地呈现出粗糙的纹理、磨损的号码、自然的裂缝和有瑕疵的时间印记。木材方块交错放置在最合适的位置。建立了“森林”的基调。它们可以作为桌子摆放,也可以嵌入不锈钢板作为展示架,或者开槽嵌入电线和充电插座。原始与现代的碰撞,让古老的事物更加有趣。
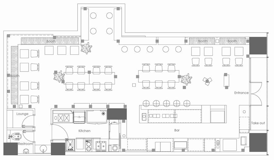
后厨房通过食品出口与前吧台联系,完成高效的送餐。这也为未来的产品扩展保留了更多的可能性。
水磨石的工艺起源于16世纪的威尼斯。石匠们把宅邸装饰时剩下的大理石碎片带回家,随意地镶嵌在院子里。经过简单的治疗,他们取得了意想不到的效果。我们选择了一种古老的工艺品——手工水磨石。我们从石材厂回收了废弃的大型绿色大理石。设计方和甲方在现场采用自由落体或用手锤砸碎。它自然随机地裂成不同的形状。就像森林里密密麻麻的枝叶与温暖的阳光交织在一起,形成斑驳的形象,营造出一个“光与影”的庭院。
当我们想唤起大家对旧园区标识的记忆时,我们发现由于电子产品的快速发展,最古老的8珠LED已经几乎消失了。经过甲方的不懈寻找,我们才得以用旧古董进行装修。我们将数字装置与“过去”的未来感结合在水泥和木结构中。这也是我们对当前自然和环境的思考。
成品铝合金型材用于立面装修及吊顶轻轨。我们以相对低成本的方式完成了材料的重建,并使其统一。
【平面布置图】

















