MUSINSA STANDARD是由韩国领先的在线精选商店Musinsa开发的私人品牌,旨在开发现代基本休闲装。高效的运营和简化的分销结构可提供价格合理的优质产品。这为价值消费时代树立了新标准。在2019F W季,我们提供了多种价格适中的轻便羽绒服。
Man-ho Jo在19岁的时候创立了在线俱乐部“Musinsa”。在接下来的几年 Man-ho Jo创立了在线时尚博客Musinsa Magazine。随着电子商务活动的增加,这使得Musinsa成为了韩国痴迷时尚的Z世代的首选在线商店之一,营业额超过100万美元。
两年前品牌在首尔设混合商店和咖啡馆的 Musinsa Terrace ,两年后品牌再次发力开设了全新旗舰店,名为 Musinsa Standard。这家新店占地 850 平方米(9,149 平方英尺)。位于一座现代的四层建筑。
室内设计由首尔建筑事务所LABOTORY设计,设计灵感来自知名导演斯坦利·库布里克1968年的标志性科幻电影《2001太空漫游》。设计灵感已经转化为对材料、体量和光线的实际使用。
全新的Musinsa Standard旗舰店,在外立面采用了,背光板组成的网格,隐隐约约暗示了内部的未来主义美学。嵌入式线性天花板灯由嵌入式光点交替,大面积的背光织物天花板,非常突出,背光板的格栅也被用作夹层的地板,给建筑带来了大胆的未来感。
在空间中,材料的变化从粗糙的触感到光滑的金属体现了从过去、现在和未来的时间变化的残余在每一层。其次,大小体量的重叠和分割结构,通过楼梯的结构形态,表现了时间的分散,抽象表达了时间之间的联系。
在旗舰店重,我们用不同的表达方式来表示光,这是一种显示时间流逝的物理元素。天花板上分层的过滤钢百叶窗和织物表达了梦幻和模糊的感觉,从1.5层的底部直接投射光线,通过地下室一层的光段表达过去。
因此,lab在我们的设计语言中定义了时间的概念,并表达了“打破时间”的理念,并试图向使用Musinsa标准的客户传递一个有价值的、永恒的品牌标识。
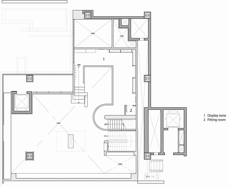
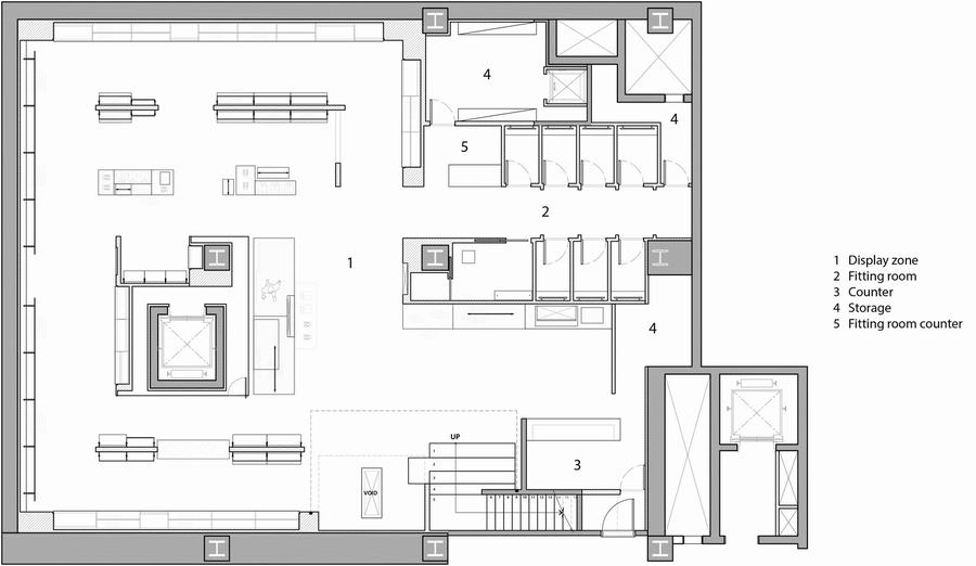
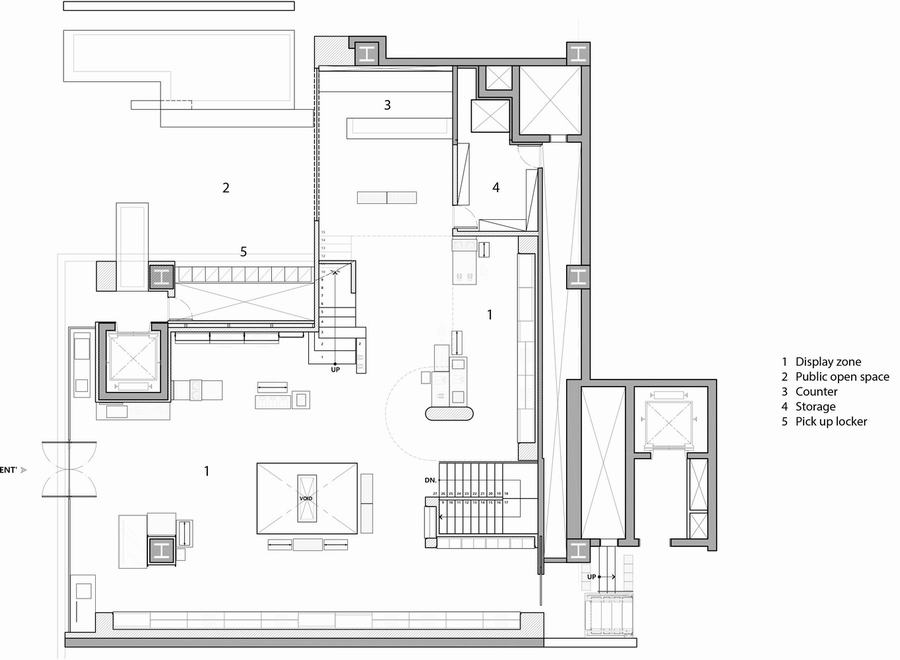
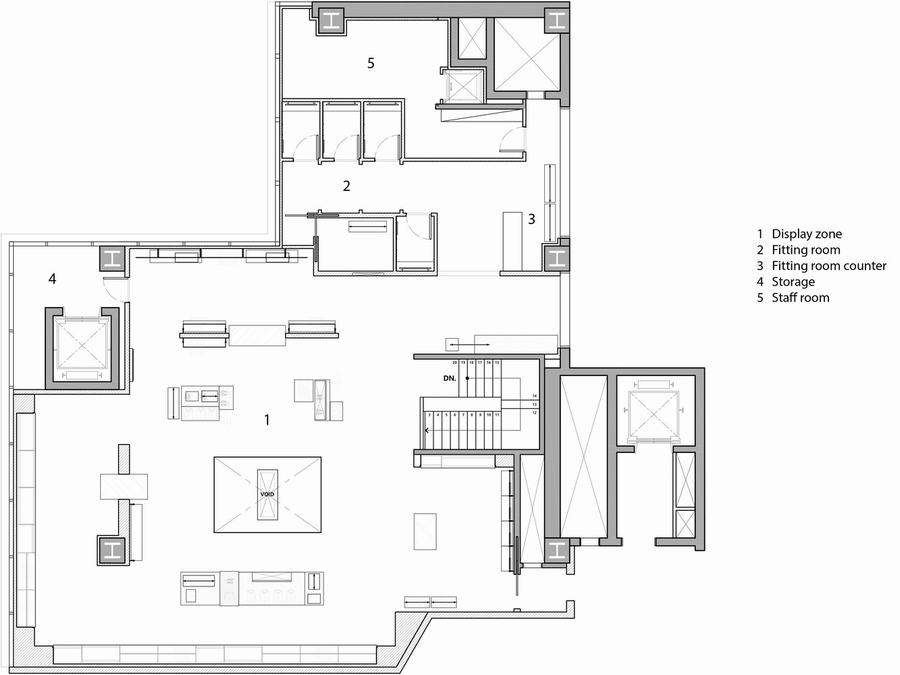
【平面布置图】






















