诞生于美国西岸的Blue Bottle,除了坚持手工冲制的咖啡信仰外,整个品牌的设计风格也是独树一帜的存在。小到品牌LOGO、咖啡产品包装、官网的设计,大到素有“咖啡界Apple Store”之称的店面装修陈设,都称得上视觉审美的一股清流,比起夸张浮躁的网红店总是有过之而无不及。
BLUE BOTTLE COFFEE蓝瓶咖啡最新开出日本大阪梅田茶树町店。由于这是该品牌在新地区开设的第一家店,室内设计需要考虑蓝瓶咖啡传达的信息,一个故事,易于客户理解。标志性的蓝色标志突然出现在城市景观中,发现熟悉的蓝色品牌的喜悦,用各种灯光和材料来表达。
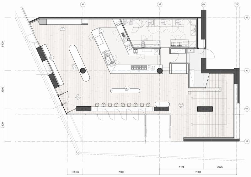
从历史上看,茶町有着独特的日本茶文化,人们聚在一起共享时光,整个咖啡馆以现代的方式诠释着和谐的感觉。在一楼,顾客被温暖的木材所包围,一个巨大的滴水站充满了明亮的欢迎光线,一个舞台般的空间,咖啡师在这里制作咖啡。
由拉丝抛光不锈钢制成的柜台,端庄大方。表面反映了空间的风景,软化了咖啡师与顾客之间的界限。整个商店都使用了特殊的蓝色玻璃,以其独特的透明度表达了该品牌的标志性特征。产品放置在那里是为了直接传达品牌的信息。
Blue Bottle coffee 蓝瓶咖啡操作台细部,不锈钢的反射模糊空间边界。
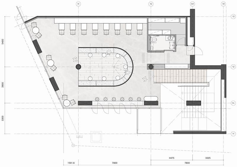
在楼梯区,一个玻璃枝形吊灯从天花板上悬挂下来,延伸到整个中庭。咖啡色的球形玻璃,由大阪的玻璃艺术家制作,轻轻地欢迎客人。顾客可以通过楼梯的三维空间体验,感受流动的光影和色彩,给人留下深刻印象。
在二楼的中心,白色的材料主要围绕着一个特殊的区域,刺激着参观者的五种感官。通过在这里花费时间,沐浴在从天花板“落下”的图像和声音中,客人创造了一种特殊的体验,可以改变时间的印象,刺激他们的感官。
与Panoramatiks合作创建的图像和音乐可以让客户完全重置自己。这种长凳由一种特殊材料制成,其机制只有真正坐着的人才能通过感官体验。
它不仅仅是一个概念,而是一个真正激发人类五感的地方。该空间已成为一个全新的咖啡馆内部,提供了享受一杯咖啡的特殊体验。
【平面布置图】






















