关注微信公众号:米尚丽零售设计网
关注后回复“店铺资料”即可获取十七套顶级店铺设计全套资料
【品牌店铺全套设计方案丨十七套丨概念方案+施工图+软装清单+消防机电图
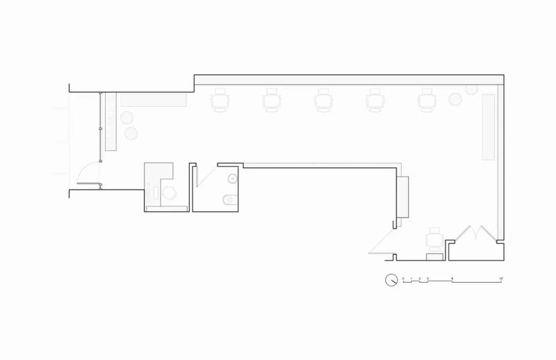
CRISP的第二家店位于蒙特利尔圣亨利(Saint-Henri)附近的一条长隧道中,占地约700平方英尺。从外面看,这个空间有点神秘,一系列高大的潘帕斯草原的稻草隐藏了大部分的视角。内部的布局仍然很简单:一个服务台、六把理发椅和为等待的客户提供的额外座位。
理发空间的界限是不清楚的,因为一个最小的粗钢架子和镜子横跨整个40英尺的墙壁。在空间的后面,一个带有背光的钢制镂空标志与入口花盆镂空的反向字母相呼应。
这个新空间与它的第一家店一样采用了极简主义的设计,但与之形成对比的是,它使用了不那么精致、更原始的调色板。为了匹配现有的混凝土板,墙壁用手工制作的人造芬尼油漆完成。
相比之下,唯一呈现的颜色是散布在空间周围的干枯植物的米色。所有的家具都是定制设计的,是独特的空间。几乎全部由两倍的原钢板组成,一种机械语言将柜台、架子和长凳连接在一起。











