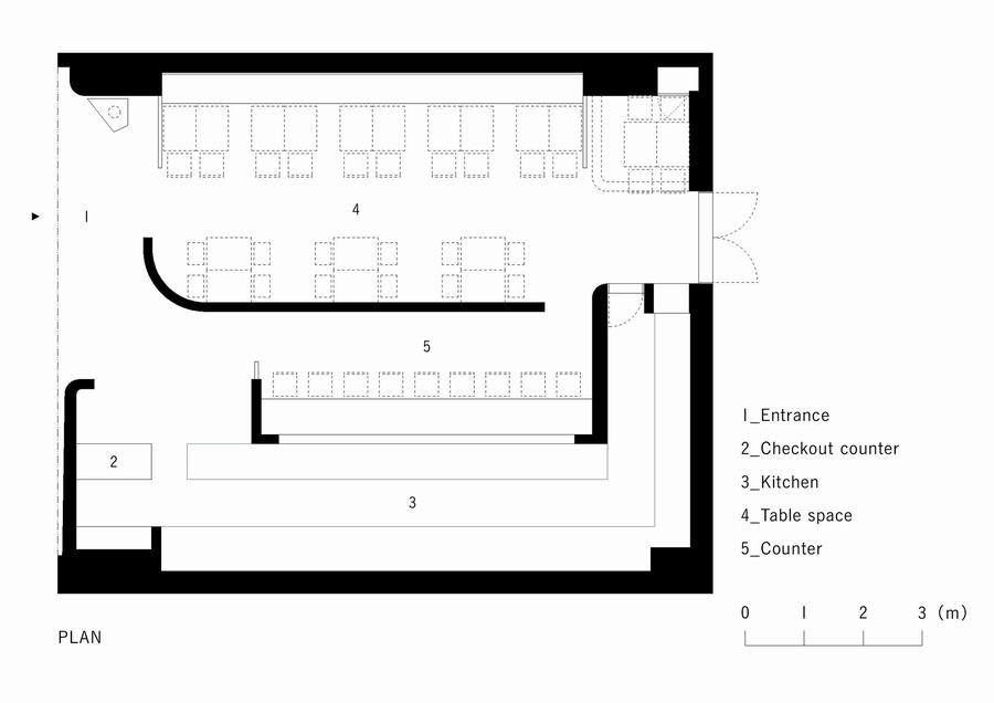
这是位于中国广东省中南部佛山市一家购物中心一角的乌冬面餐厅“火山面藏”的室内设计。
这是位于中国广东省中南部佛山市一家购物中心一角的乌冬面餐厅“火山面藏”的室内设计。
我们与一位日本平面设计师密切合作,监督整个项目从品牌到空间构造。
在我们的规划过程中,我们决定在建造这个空间时利用材料来展示日本工匠的技术,因为日本独特的饮食文化源自乌冬面手工艺人的技能。我们还认为,在食品制备过程和太空建设之间建立强有力的联系是至关重要的。
石膏被涂在地板和墙壁上,它们占据了餐厅的大部分表面积。看起来有点太高的天花板,通过在舒适的高度悬挂带有山墙屋顶设计的生锈铁格子,变成了假天花板。天花板也被涂黑,以在餐厅的顶部和底部区域之间形成更鲜明的对比。














