(Buddha-Bar New York)是一家位于曼哈顿翠贝卡(Tribeca)社区的两层餐厅,主打亚洲美食。这个项目的主要的概念是轮回。我们在材料、空间和大品牌的重生中表达了这一点,这一历史始于1996年在巴黎开设的第一家Buddha-Bar。
我们在餐厅最宽敞的大厅入口处放置了一座15英尺(4.5米)高的玻璃佛像。我们从一个由一些黄色金属制成的神的想法中走出来,在那里添加一些未来主义的情绪。
我们的佛像是由近1000个平面元素组成的参数化雕塑。玻璃的侧面有一个磨砂纹理,不允许来自投影仪的光进入雕塑内部。三维数字艺术投影创造出光全息图的错觉。
主餐厅的大型金属吊灯是由Kateryna Sokolova设计的法国品牌Forestier。它们有一种东方情调,但同时又像一些未来时代的无人机,静静地悬在空中。
室内的灰色、棕色、蓝色混合了现代设计和建筑的原始氛围。我们通过室内细节来表达轮回的主题。我们使用了800-4000年历史的木材,根据专业知识制作桌面和部分墙面。
餐厅大厅用干植物装饰。我们保留了一些建于ХХ世纪初的典型阁楼空间,铸铁柱子和建筑原有的梁。由钢筋制成的高屏幕也让人联想到纽约工业繁荣的时代。
你可以假设它不是一个重达15吨的雕塑,而是一个空容器,里面正在发生着什么,生命开始了。这座雕塑价值一百万美元。
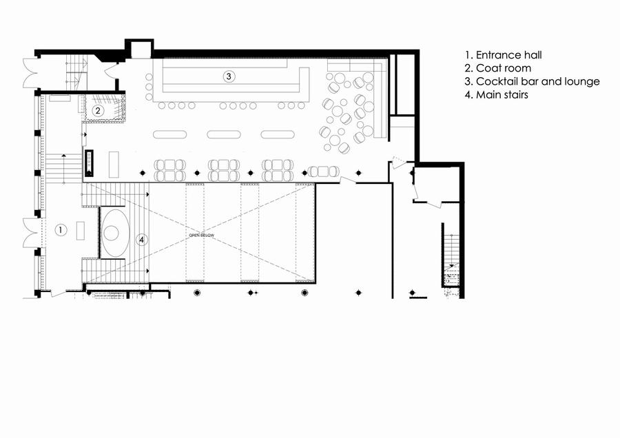
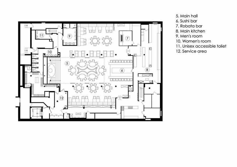
【平面布置图】



















