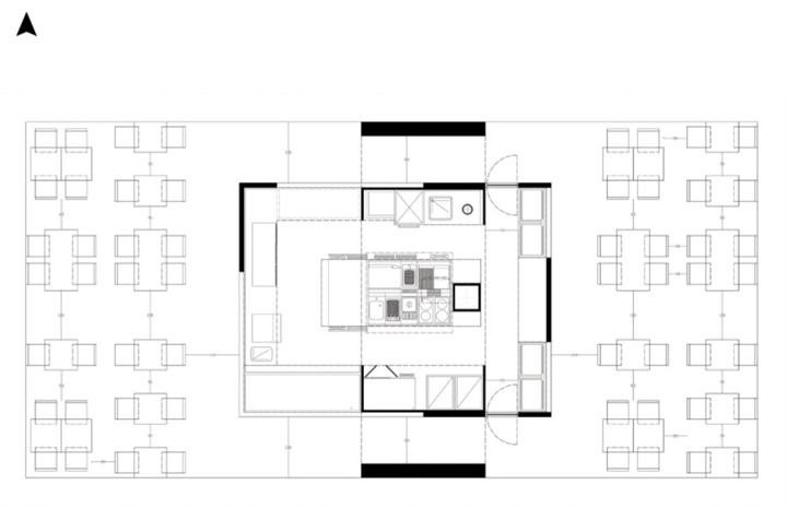
时髦的咖啡馆é的设计理念是集中于创造一个地点位于一个大购物中心的中庭伤害一个独特的氛围。在理论;旨在促进戏剧人物的经验在参观咖啡é或者干脆步行通过中庭的设计方法。厨房内的行动是明确地由一个树冠和一组分区,允许从所有方向的视觉访问。这伞是由两个透明墙壁,每一堵墙是由两个钢柱和未完成的柚木金字塔块两玻璃板之间(三维模式)。
玻璃面板增加了从两个侧面的视觉障碍[海拔3,4 ]。磨光的白色大理石被用于覆(100-140cm)高分区周围厨房。三角图案是用来增强的纹理和规模的分区。此外;明亮的黄色是用来直接购物的游客注意到咖啡馆é进一步区别周围的场所。
欢迎关注:
【优设优家室内设计网 】www.yousheyoujia.com
【优设优图优质设计案例分享平台】 www.yousheyoutu.com















